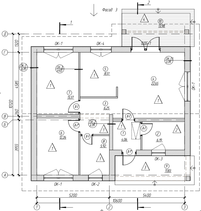
ПРОЕКТ F 1
размер дома 9,6 х 11,4 метра
площадь дома 83 м2
высота этажа 2,7 метра
количество спален - 2
цена 33000 руб.
Отправьте презентацию проекта на свой емейл чтобы позже вернуться к принятию решения
ПРОЕКТ F 1
размер дома 9,6 х 11,4 метров
площадь дома 83 м2
высота этажа 2.7 метра
количество спален - 2
Отправьте презентацию проекта на свой емейл чтобы позже вернуться к принятию решения
Технические характеристики
Состав проекта
Фундамент - монолитная плита 250 мм.
Архитектурный раздел
Наружные стены - газобетон 400 мм.
Конструктивный раздел
Отделка фасада - штукатурка
Водоснабжение
Кровля - фальцевая
Отопление
Электрика
Проект — это первый шаг к реализации плана по строительству будущего дома.
Проект — это уже ваш дом, который осталось только построить.
Это не просто чертежи, а четкий план, который сделает весь процесс строительства прозрачным и предсказуемым. Почему важно начать с проекта?
Легче выбрать участок. С проектом на руках сразу понятно, как дом впишется в территорию: где будет заезд, хватит ли места для парковки и дворовых построек, как дом расположиться по сторонам света.
Точный расчет стоимости. Больше никаких неожиданных расходов! По проекту заранее рассчитываем количество материалов, объем работ а, следовательно и бюджет строительства без неприятных сюрпризов.
Строительство без ошибок. Проект это по сути инструкция по сборке дома, там содержится вся необходимая информация для строителей. С проектом легко контролировать и вести процесс строительства без переделок и лишних трат.
ПРОЕКТСТОК
проекты современных домов
Политика конфиденциальности
Настоящая Политика определяет порядок обработки персональных данных и меры по обеспечению безопасности персональных данных у владельца сайта https://проектсток.рф/ (далее ПРОЕКСТОК или Оператор).
Целью настоящей политики конфиденциальности является обеспечение защиты прав и свобод человека и гражданина при обработке его персональных данных, в том числе защиты прав на неприкосновенность частной жизни, личную и семейную тайну.
Если Вы не согласны с условиями нашей Политики конфиденциальности, не используйте сайт https://проектсток.рф/!
- цель обработки персональных данных;
- перечень персональных данных, на обработку которых дается согласие субъекта персональных данных;
- наименование или фамилия, имя, отчество и адрес лица, осуществляющего обработку персональных данных по поручению оператора, если обработка будет поручена такому лицу;
- перечень действий с персональными данными, на совершение которых дается согласие, общее описание используемых оператором способов обработки персональных данных;
- срок, в течение которого действует согласие субъекта персональных данных, а также способ его отзыва, если иное не установлено федеральным законом;
- информацию о том, как можно отозвать свое согласие на обработку персональных данных.
Персональные данные - любая информация, относящаяся прямо или косвенно к определенному или определяемому физическому лицу (субъекту персональных данных);
Оператор - государственный орган, муниципальный орган, юридическое или физическое лицо, самостоятельно или совместно с другими лицами организующие и (или) осуществляющие обработку персональных данных, а также определяющие цели обработки персональных данных, состав персональных данных, подлежащих обработке, действия (операции), совершаемые с персональными данными;
Обработка персональных данных - любое действие (операция) или совокупность действий (операций), совершаемых с использованием средств автоматизации или без использования таких средств с персональными данными, включая сбор, запись, систематизацию, накопление, хранение, уточнение (обновление, изменение), извлечение, использование, передачу (распространение, предоставление, доступ), обезличивание, блокирование, удаление, уничтожение персональных данных;
- Обработка персональных данных осуществляется на законной и справедливой основе
- Обработка персональных данных ограничивается достижением конкретных, заранее определенных и законных целей.
- Не допускается объединение баз данных, содержащих персональные данные, обработка которых осуществляется в целях, несовместимых между собой.
- Обработке подлежат только персональные данные, которые отвечают целям их обработки.
- Содержание и объем обрабатываемых персональных данных соответствуют заявленным целям обработки.
- При обработке персональных данных обеспечиваются точность персональных данных, их достаточность, а в необходимых случаях и актуальность по отношению к целям обработки персональных данных.
- Оператор принимает необходимые меры либо обеспечивает их принятие по удалению или уточнению неполных или неточных данных.
- Хранение персональных данных осуществляется в форме, позволяющей определить субъекта персональных данных, не дольше, чем этого требуют цели обработки персональных данных, если срок хранения персональных данных не установлен федеральным законом, договором, стороной которого, выгодоприобретателем или поручителем по которому является субъект персональных данных. Обрабатываемые персональные данные подлежат уничтожению либо обезличиванию по достижении целей обработки или в случае утраты необходимости в достижении этих целей, если иное не предусмотрено федеральным законом.
Оператор сайта может собирать следующую информацию о пользователях сайта:
- Фамилия, Имя, Отчество
- Адрес электронной почты
Отзыв согласия на обработку Персональных данных пользователя, а также удаление Персональных данных пользователя возможно по его письменному запросу, присланному на e-mail Оператора proektstok@yandex.ru, однако в случае отзыва согласия или удаления персональных данных, Оператор не может гарантировать качественного и всестороннего предоставления информации и/или услуг.
Ниже описаны некоторые способы использования личной информации пользователя:
- для предоставления информации и услуг, которые запрашивает пользователь
Оператор не продает личные данные пользователя и не передает их третьим лицам без согласия на то пользователя.
Далее, описаны некоторые случаи передачи личной информации пользователя:
- в случаях, если это требуется органам спецслужб или если это требует законодательство
- Редакция Политики конфиденциальности от 12-10-2023
- Срок действия настоящей Политики конфиденциальности не ограничен
- Настоящая Политика конфиденциальности теряет свою силу при появлении новой версии, размещенной на сайте https://проектсток.рф/
- Дети любых возрастов могут беспрепятственно пользоваться данным сайтом.
Пользовательское соглашение
Настоящее Пользовательское Соглашение (Далее Соглашение) регулирует отношения между владельцем https://проектсток.рф/ (далее ПРОЕКТСТОК или Администрация) с одной стороны и пользователем сайта с другой.
Сайт ПРОЕКТСТОК не является средством массовой информации.
Используя сайт, Вы соглашаетесь с условиями данного соглашения.
Если Вы не согласны с условиями данного соглашения, не используйте сайт ПРОЕКТСТОК!
Пользователь имеет право:
- осуществлять поиск информации на сайте
- получать информацию на сайте
- использовать информацию сайта в личных некоммерческих целях
Администрация имеет право:
- по своему усмотрению и необходимости создавать, изменять, отменять правила
- ограничивать доступ к любой информации на сайте
Пользователь обязуется:
- не нарушать работоспособность сайта
- не использовать скрипты (программы) для автоматизированного сбора информации и/или взаимодействия с Сайтом и его Сервисами
Администрация обязуется:
- поддерживать работоспособность сайта за исключением случаев, когда это невозможно по независящим от Администрации причинам.
- администрация не несет никакой ответственности за услуги, предоставляемые третьими лицами
- в случае возникновения форс-мажорной ситуации (боевые действия, чрезвычайное положение, стихийное бедствие и т. д.) Администрация не гарантирует сохранность информации, размещённой Пользователем, а также бесперебойную работу информационного ресурса
Данное Соглашение вступает в силу при любом использовании данного сайта.
Соглашение перестает действовать при появлении его новой версии.
Администрация оставляет за собой право в одностороннем порядке изменять данное соглашение по своему усмотрению.
Администрация не оповещает пользователей об изменении в Соглашении.
ПРОЕКТСТОК ИНН 5310020750
proektstok@yandex.ru
Политика конфиденциальности
Редактируемый текст
Данный сайт использует Cookie
Редактируемый текст